有限会社輝広 TOP > (戸建(売買))地域から探す > 加古川市 > 加古川市平岡町高畑 中古戸建
・カーポート2台駐車(台数車種による)
・2022年築
・角地
・オール電化
・平岡小、平岡中
画像をクリックして視点を操作











(※元利均等方式 金利5.00%まで ※返済年数5~50年まで入力できます)
(※ボーナスは年2回で計算しています。1000万円まで入力できます)
(※物件購入時、その他諸費用が発生する場合がございます)
※地図上に表示される物件の位置は付近住所に所在することを表すものであり、実際の物件所在地とは異なる場合がございます。
| 物件名 | 加古川市平岡町高畑 中古戸建 | ||
|---|---|---|---|
| 所在地 | 兵庫県加古川市平岡町高畑 | ||
| 交通 |
|
||
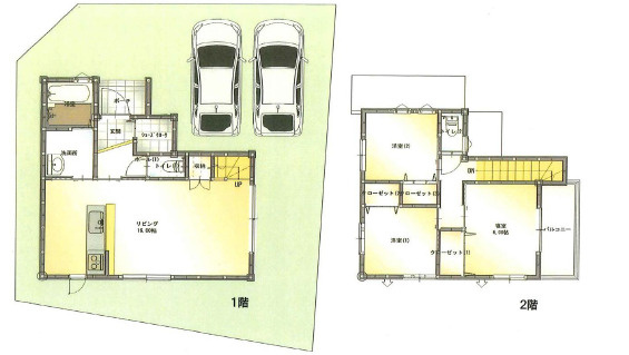
| 間取り/詳細 |
3LDK LDK 16.0帖 1室/洋室 6.0帖 1室/洋室 2室 |
||
| 接道状況 | 角地(北東 公道 5.3m)(北西 5.3m) | ||
| 価格 | 2,880万円 | 主要採光面 | 北東 |
| 建物面積/坪数 | 78.24㎡/ 23.66坪 | 土地面積/坪数 | 126.37㎡/ 38.22坪 |
| 種別/構造 | 中古一戸建/木造 | 築年月(築年数) | 2022年 2月(築3年) |
| 階建 | 2階建 | 地目 | 宅地 |
| 駐車場/料金 | 有(2台)(屋根有)/0円 台数車種による。 | 地勢 | 平坦 |
| 私道面積 | - | セットバック | - |
| 都市計画 | 市街化区域 | 用途地域 | 工業 |
| 建ぺい率/容積率 | 60%/200% | 土地権利 | 所有権 |
| 総区画数 | - | 借地料/借地期間 | -/- |
| 現況 | 居住中 | その他の法令上の制限 | - |
| 取引態様/引渡時期 | 仲介/相談 | 建築確認番号 | - |
| 設備条件 |
|
||
| 備考 |
カーポート2台並列駐車可能です(車種による) 2022年2月築の新しいお家。 前面道路5.3m。 現在お住まい中のため、ご内覧の際は事前のご連絡をお願いしております。 |
||
| QRコード |
このQRコードを読み取ることで、スマホでも物件情報を確認できます。 |
||