加古川市別府町別府 中古戸建
価格
880
万円
種別
中古一戸建
間取
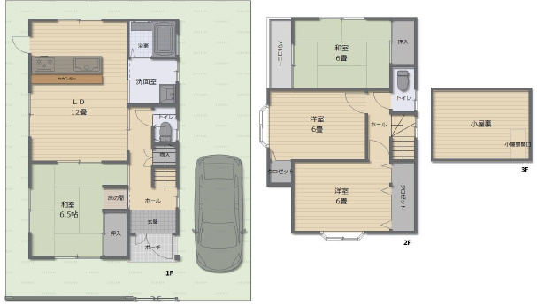
4LDK
建物面積
88.59㎡
住所
兵庫県加古川市別府町別府
交通
別府駅
徒歩6分
担当者のコメント
大谷方秀
山陽電鉄別府駅まで徒歩6分で通勤通学にも便利ですね。
エープライス、アリオ加古川、イセダ屋、ダイキホームセンター、キリン堂が近くにあります。
郵便局や金融機関も徒歩圏内。
別府小学校まで徒歩11分、別府中学校まで徒歩8分。
加古川市 明石市 高砂市 加古郡 姫路市の不動産情報なら きこう にお任せ。フリーダイヤル0120-928-028
外観
間取り
4LDK+小屋裏収納です。
地図
駐車場
外観
前面道路含む現地写真
周辺
玄関
居間・リビング
居間・リビング
キッチン
キッチン
和室
和室
独立洗面台
浴室
トイレ
寝室
寝室
バルコニー
洋室
洋室
トイレ
子供部屋
子供部屋