有限会社輝広 TOP > (戸建(売買))地域から探す > 高砂市 > 高砂市伊保崎南 中古戸建
・山陽電鉄伊保駅徒歩5分
・2024年12月リフォーム
・前面道路6m
・伊保小学校・竜山中学校
画像をクリックして視点を操作











(※元利均等方式 金利5.00%まで ※返済年数5~50年まで入力できます)
(※ボーナスは年2回で計算しています。1000万円まで入力できます)
(※物件購入時、その他諸費用が発生する場合がございます)
※地図上に表示される物件の位置は付近住所に所在することを表すものであり、実際の物件所在地とは異なる場合がございます。
| 物件名 | 高砂市伊保崎南 中古戸建 | ||
|---|---|---|---|
| 所在地 | 兵庫県高砂市伊保崎南 | ||
| 交通 |
|
||
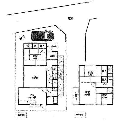
| 間取り/詳細 |
4LDK L 8.0帖 1室/DK 7.5帖 1室/和室 6.0帖 1室/洋室 6.0帖 1室/和室 6.0帖 1室/和室 4.5帖 1室 |
||
| 接道状況 | 角地(西 公道 6.0m)(北 公道 6.0m) | ||
| 価格 | 898万円 | 主要採光面 | 北西 |
| 建物面積/坪数 | 89.43㎡/ 27.05坪 | 土地面積/坪数 | 112.41㎡/ 34.00坪 |
| 種別/構造 | 中古一戸建/木造 | 築年月(築年数) | 1977年 1月(築48年) |
| 階建 | 2階建 | 地目 | 宅地 |
| 駐車場/料金 | 有(1台)/0円 車種による制限有。 | 地勢 | 平坦 |
| 私道面積 | - | セットバック | - |
| 都市計画 | 市街化区域 | 用途地域 | 第一種中高層住居専用 |
| 建ぺい率/容積率 | 60%/150% | 土地権利 | 所有権 |
| 総区画数 | - | 借地料/借地期間 | -/- |
| 現況 | 空家 | その他の法令上の制限 | - |
| 取引態様/引渡時期 | 仲介/即時 | 建築確認番号 | - |
| 設備条件 |
|
||
| 備考 |
2024年12月リフォーム内容(外壁塗装・キッチン台・浴槽・洗面台・トイレ・畳表替え・襖障子・クロス・防蟻工事) 駐車苦手な方にも嬉しい幅員6mの前面道路に面しています。 1Fの和室はリビングと隣接しているためお子様の遊び場や客間としてもお使いでき便利ですね! 現地いつでもご案内いたしますのでぜひご覧ください。 |
||
| QRコード |
このQRコードを読み取ることで、スマホでも物件情報を確認できます。 |
||