有限会社輝広 TOP > (戸建(売買))地域から探す > 高砂市 > 高砂市伊保崎4丁目 中古戸建
・山陽電鉄伊保駅まで徒歩約11分
・閑静な住宅地
・角地
・カーポート
・伊保小学校・竜山中学校











(※元利均等方式 金利5.00%まで ※返済年数5~50年まで入力できます)
(※ボーナスは年2回で計算しています。1000万円まで入力できます)
(※物件購入時、その他諸費用が発生する場合がございます)
※地図上に表示される物件の位置は付近住所に所在することを表すものであり、実際の物件所在地とは異なる場合がございます。
| 物件名 | 高砂市伊保崎4丁目 中古戸建 | ||
|---|---|---|---|
| 所在地 | 兵庫県高砂市伊保崎4丁目 | ||
| 交通 |
|
||
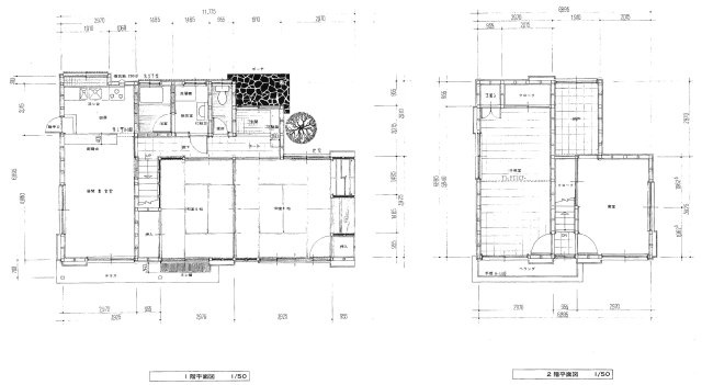
| 間取り/詳細 |
4LDK+1S(納戸) LDK 1室/和室 8.0帖 1室/和室 6.0帖 1室/洋室 1室/洋室 1室/S 1室 |
||
| 接道状況 | 角地(北西 5.6m)(北東 公道 5.6m) | ||
| 価格 | 750万円 | 主要採光面 | 北西 |
| 建物面積/坪数 | 112.09㎡/ 33.9坪 | 土地面積/坪数 | 132.78㎡/ 40.16坪 |
| 種別/構造 | 中古一戸建/木造 | 築年月(築年数) | 1976年 4月(築49年) |
| 階建 | 2階建 | 地目 | 宅地 |
| 駐車場/料金 | 有(1台)(屋根有)/0円 | 地勢 | 平坦 |
| 私道面積 | - | セットバック | - |
| 都市計画 | 市街化区域 | 用途地域 | 第一種中高層住居専用 |
| 建ぺい率/容積率 | 60%/200% | 土地権利 | 所有権 |
| 総区画数 | - | 借地料/借地期間 | -/- |
| 現況 | 空家 | その他の法令上の制限 | 高度地区 |
| 取引態様/引渡時期 | 仲介/相談 | 建築確認番号 | - |
| 設備条件 |
|
||
| 備考 |
カーポートがございますので大事な愛車を雨や日差しからしっかり守れます♪ お好みのスタイルにリフォームするのも楽しそうですね。 1階にはお客様の宿泊にも使える和室もございます。 現地いつでもご案内いたしますのでぜひご覧ください。 |
||
| QRコード |
このQRコードを読み取ることで、スマホでも物件情報を確認できます。 |
||