有限会社輝広 TOP > (戸建(売買))地域から探す > 加古川市 > 加古川市野口町長砂 中古戸建
・駐車2台
・山陽電鉄浜の宮駅徒歩19分
・日当たり通風良好
・野口南小学校、中部中学校
画像をクリックして視点を操作











(※元利均等方式 金利5.00%まで ※返済年数5~50年まで入力できます)
(※ボーナスは年2回で計算しています。1000万円まで入力できます)
(※物件購入時、その他諸費用が発生する場合がございます)
※地図上に表示される物件の位置は付近住所に所在することを表すものであり、実際の物件所在地とは異なる場合がございます。
| 物件名 | 加古川市野口町長砂 中古戸建 | ||
|---|---|---|---|
| 所在地 | 兵庫県加古川市野口町長砂 | ||
| 交通 |
|
||
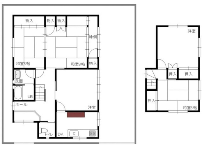
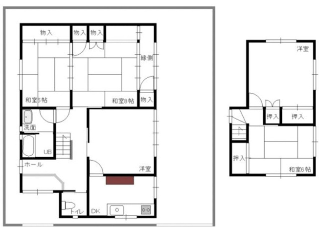
| 間取り/詳細 |
5K K 1室/和室 8.0帖 1室/和室 6.0帖 1室/洋室 1室/和室 6.0帖 1室/洋室 1室 |
||
| 接道状況 | 一方(西 公道 3.5m 間口 11.5m) | ||
| 価格 | 750万円 | 主要採光面 | 西 |
| 建物面積/坪数 | 112.72㎡/ 34.09坪 | 土地面積/坪数 | 149.83㎡/ 45.32坪 |
| 種別/構造 | 中古一戸建/木造 | 築年月(築年数) | 1983年 9月(築42年) |
| 階建 | 2階建 | 地目 | 宅地 |
| 駐車場/料金 | 有(2台)/0円 | 地勢 | - |
| 私道面積 | - | セットバック | - |
| 都市計画 | 市街化区域 | 用途地域 | 第一種中高層住居専用 |
| 建ぺい率/容積率 | 60%/200% | 土地権利 | 所有権 |
| 総区画数 | - | 借地料/借地期間 | -/- |
| 現況 | 空家 | その他の法令上の制限 | - |
| 取引態様/引渡時期 | 仲介/相談 | 建築確認番号 | - |
| 設備条件 |
|
||
| 備考 |
駐車2台可能です。 陽当たり通風良好。再建築可能。 お好みのスタイルへのリフォームを考えるのも楽しそうですね。 現地いつでもご案内いたしますのでぜひご覧ください。 |
||
| QRコード |
このQRコードを読み取ることで、スマホでも物件情報を確認できます。 |
||