有限会社輝広 TOP > (戸建(売買))地域から探す > 加古川市 > 加古川市別府町新野辺 新築
・山陽電鉄浜の宮駅12分
・駐車2台並列
・オール電化
・2025年11月完成
・別府西小、別府中
2月6日 値下げ











(※元利均等方式 金利5.00%まで ※返済年数5~50年まで入力できます)
(※ボーナスは年2回で計算しています。1000万円まで入力できます)
(※物件購入時、その他諸費用が発生する場合がございます)
※地図上に表示される物件の位置は付近住所に所在することを表すものであり、実際の物件所在地とは異なる場合がございます。
| 物件名 | 加古川市別府町新野辺 新築 | ||
|---|---|---|---|
| 所在地 | 兵庫県加古川市別府町新野辺 | ||
| 交通 |
|
||
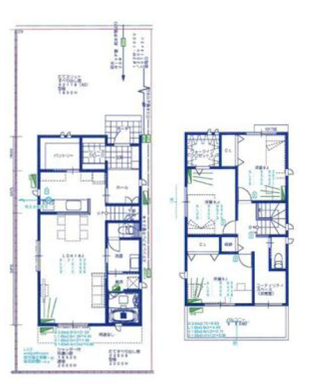
| 間取り/詳細 |
3LDK+1S(納戸) LDK 18.0帖 1室/洋室 6.0帖 3室/S 1室 |
||
| 接道状況 | 一方(北西 公道 6.5m 間口 7.2m) | ||
| 価格 | 2,980万円 | 主要採光面 | 北西 |
| 建物面積/坪数 | 103.50㎡/ 31.3坪 | 土地面積/坪数 | 132.84㎡/ 40.18坪 |
| 種別/構造 | 新築一戸建/木造 | 築年月(築年数) | 2025年 11月(新築) |
| 階建 | 2階建 | 地目 | 宅地 |
| 駐車場/料金 | 有(2台)/0円 | 地勢 | 平坦 |
| 私道面積 | - | セットバック | - |
| 都市計画 | 市街化区域 | 用途地域 | 第一種中高層住居専用 |
| 建ぺい率/容積率 | 60%/200% | 土地権利 | 所有権 |
| 総区画数 | - | 借地料/借地期間 | -/- |
| 現況 | 完成済み | その他の法令上の制限 | - |
| 取引態様/引渡時期 | 仲介/即時 | 建築確認番号 | 第ONEX確建加古2520050号 |
| 設備条件 |
|
||
| 備考 |
駐車2台並列も可能です。(車種による) 幅員6m以上の前面道路に面しています。 深夜電力を利用して電気代が削減になるオール電化。 1坪以上の広さを設けた浴室でゆったりバスタイムが過ごせますね。 全室6帖以上のゆとりの間取。 広々パントリーやウォークインクローゼット、シューズインクローゼット等、収納豊富! 現地いつでもご案内いたしますのでぜひご覧ください。 |
||
| QRコード |
このQRコードを読み取ることで、スマホでも物件情報を確認できます。 |
||