有限会社輝広 TOP > (戸建(売買))地域から探す > 姫路市 > 姫路市花田町加納原田 中古戸建
・前面道路6m以上
・駐車場2台可(カーポート)
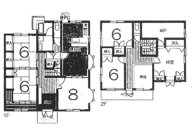
・6SLDK
・玄関吹抜
・花田小学校・花田中学校











(※元利均等方式 金利5.00%まで ※返済年数5~50年まで入力できます)
(※ボーナスは年2回で計算しています。1000万円まで入力できます)
(※物件購入時、その他諸費用が発生する場合がございます)
※地図上に表示される物件の位置は付近住所に所在することを表すものであり、実際の物件所在地とは異なる場合がございます。
| 物件名 | 姫路市花田町加納原田 中古戸建 | ||
|---|---|---|---|
| 所在地 | 兵庫県姫路市花田町加納原田 | ||
| 交通 |
|
||
| 間取り/詳細 |
6LDK+1S(納戸) LDK 1室/洋室 8.0帖 1室/和室 6.0帖 2室/洋室 1室/洋室 6.0帖 2室/S 1室 |
||
| 接道状況 | 一方(東 8.5m) | ||
| 価格 | 1,860万円 | 主要採光面 | 南 |
| 建物面積/坪数 | 160.04㎡/ 48.41坪 | 土地面積/坪数 | 222.53㎡/ 67.31坪 |
| 種別/構造 | 中古一戸建/木造 | 築年月(築年数) | 1992年 5月(築33年) |
| 階建 | 2階建 | 地目 | 宅地 |
| 駐車場/料金 | 有(2台)(屋根有)/0円 車種による。 | 地勢 | - |
| 私道面積 | - | セットバック | - |
| 都市計画 | 市街化区域 | 用途地域 | 第一種住居 |
| 建ぺい率/容積率 | 60%/200% | 土地権利 | 所有権 |
| 総区画数 | - | 借地料/借地期間 | -/- |
| 現況 | 居住中 | その他の法令上の制限 | - |
| 取引態様/引渡時期 | 仲介/相談 | 建築確認番号 | - |
| 設備条件 |
|
||
| 備考 |
玄関は空間が縦に広がる吹抜けになっています。 お部屋数が多いのでご家族が多いご家庭にもいいですね。 キッチンに勝手口があるのも便利です。 現在居住中のお家ですので、事前にご案内日程を調整させていただいてからのご内覧となります。 |
||
| QRコード |
このQRコードを読み取ることで、スマホでも物件情報を確認できます。 |
||