有限会社輝広 TOP > (マンション(売買))地域から探す > 加古川市 > グランプレステージ加古川Ⅱ 9階
・稲屋バス停まで徒歩約5分
・周辺環境充実
・最上階
・南向きバルコニー
・鳩里小学校・加古川中学校
画像をクリックして視点を操作











(※元利均等方式 金利5.00%まで ※返済年数5~50年まで入力できます)
(※ボーナスは年2回で計算しています。1000万円まで入力できます)
(※物件購入時、その他諸費用が発生する場合がございます)
※地図上に表示される物件の位置は付近住所に所在することを表すものであり、実際の物件所在地とは異なる場合がございます。
| 物件名 | グランプレステージ加古川Ⅱ 9階 | ||
|---|---|---|---|
| 所在地 | 兵庫県加古川市加古川町稲屋 | ||
| 交通 |
|
||
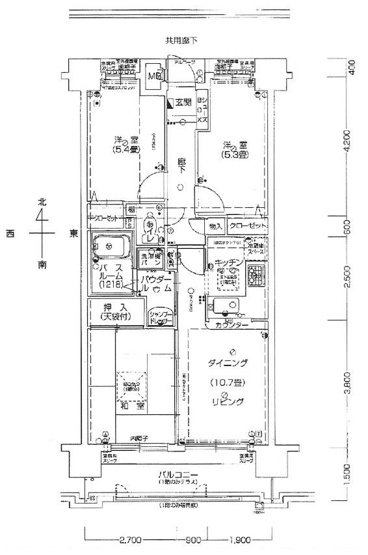
| 間取り/詳細 |
3LDK LD 10.7帖 1室/K 1室/和室 6.0帖 1室/洋室 5.4帖 1室/洋室 5.3帖 1室 |
||
| 価格 | 612万円 | 管理費+共益費 | 6,340円 |
| 専有面積 | 57.99㎡ | バルコニー面積 | 9.00㎡ |
| 種別/構造 | 中古マンション/鉄筋コンクリート | 築年月(築年数)/方位 | 1998年 2月(築27年)/南 |
| 所在階/階建 | 9階/ 9階建 | 地勢 | - |
| 修繕積立金 | 20,940円 | 駐車場/料金 | 空有/6,000円 駐車場の空き状況は要確認です。(6000~8500円/月) |
| 管理組合有無 | 有 | 管理形態 | 管理会社に全部委託 |
| 管理方式 | 日勤 | 管理会社 | 日本住宅管理㈱ |
| 棟総戸数 | 124戸 | 用途地域 | 第一種中高層住居専用 |
| 土地権利 | 所有権 | 国土法届出要否 | 不要 |
| 取引態様 | 仲介 | 現状 | 空家 |
| 引渡し | 相談 | 建築確認番号 | - |
| 設備条件 |
|
||
| 備考 |
管理費・積立金等滞納金有り(買主負担)2025年3月19日現在 689,042円。 室内残置物有り、現状渡しとなります。 南向きバルコニーで毎日のお洗濯も楽々快適です。 お好みのスタイルにリフォームするのも楽しそうですね。 現地いつでもご案内いたしますのでぜひご覧ください。 |
||
| QRコード |
このQRコードを読み取ることで、スマホでも物件情報を確認できます。 |
||